Die Mensa als Lernraum
Auch in den Mensen in München und Garching finden Studierende der TUM Platz zum Lernen und Arbeiten.
Das Wichtigste in Kürze
Auf Initiative der Studentischen Vertretung der TUM steht Studierenden der TUM neuer Lernraum zur Verfügung:
In der Mensa am Campus München (Arcisstraße 17) und in der Mensa am Forschungscampus Garching (Boltzmannstraße 19) werden Lern- und Arbeitszonen geschaffen.
In München stehen den Studierenden 600 zusätzliche Arbeitsplätze zur Verfügung, in Garching sind es ca. 1.500.
Die Lernräume sind von Montag bis Freitag, jeweils von 14:00 bis 19:00 Uhr geöffnet.
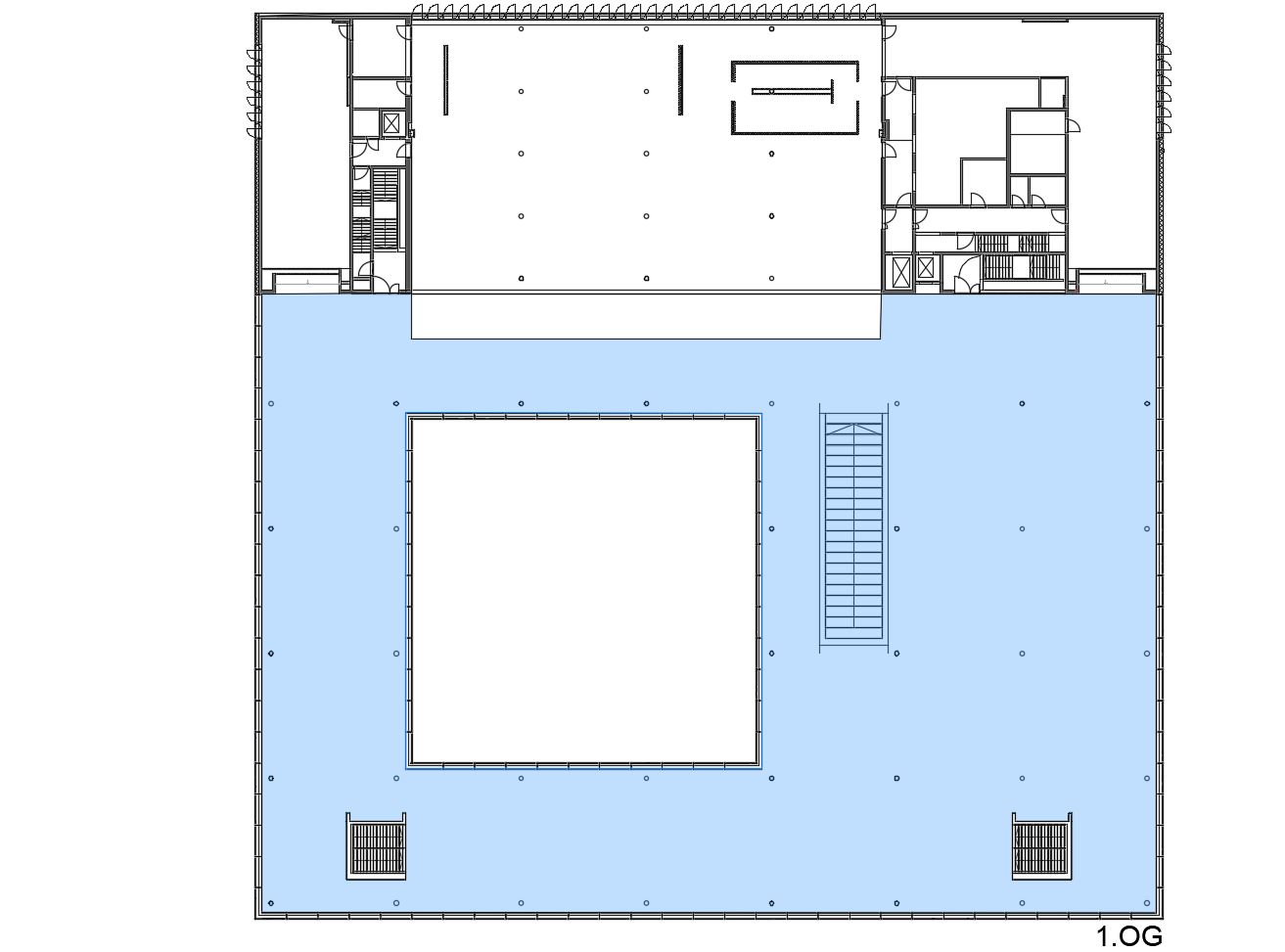
In der Mensa am Campus München, Arcisstraße 17, gibt es rund 600 studentische Arbeitsplätze im Obergeschoß.
Die Lernzone ist vor Ort ausgewiesen, unten auf dieser Seite finden Sie auch weitere Lagepläne zur Orientierung.
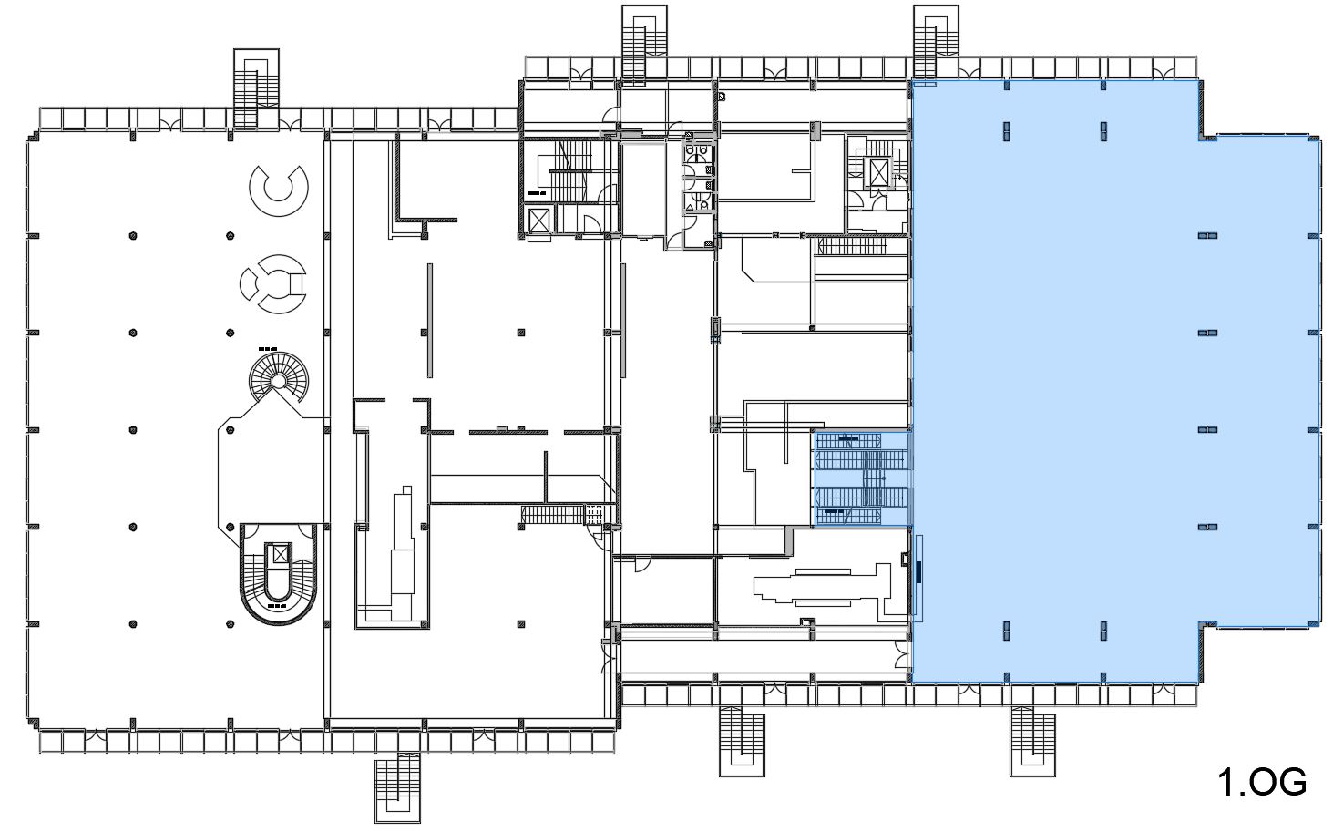
In der Mensa am Campus Garching, Boltzmannstraße 19, gibt es rund 1.500 studentische Arbeitsplätze im Obergeschoß.
Die Lernzone ist vor Ort ausgewiesen, unten auf dieser Seite finden Sie auch weitere Lagepläne zur Orientierung.
Die Lernräume in den Mensen sind von Montag bis Freitag jeweils von 14:00 bis 19:00 Uhr geöffnet.
Die Essensausgabe endet um 14:00 Uhr. Die Öffnung der Lernräume erfolgt direkt anschließend, Studierende können die Räume nach dem Essen daher unmittelbar als Lernort nutzen.
In allen Mensen der TUM ist WLAN über eduroam für Studierende kostenlos verfügbar.
Steckdosen sind an manchen Arbeitsplätzen verfügbar, aber nicht flächendeckend. Wir empfehlen daher, die Lernräume in den Mensen mit aufgeladenen Akkus zu verwenden bzw. eine eigene Powerbank oder ähnliches mitzubringen. Das Verlegen eigener Verlängerungskabel oder Mehrfachsteckdosen ist nicht möglich.
In den neu geschaffenen Lernräumen in der Mensa in München wie auch in der Mensa in Garching ist Aufsichtspersonal eines Sicherheitsdienstes vor Ort.